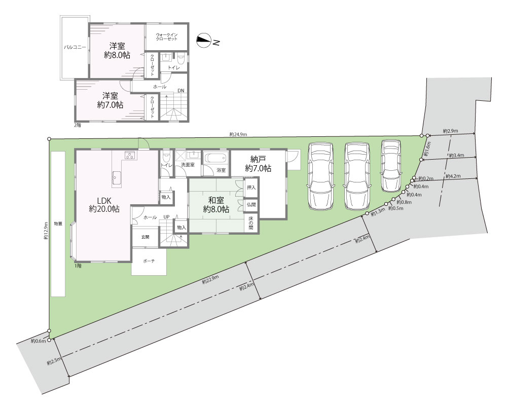
【売主物件】堺市中区八田寺町で大和ハウス工業施工・平成2年・土地65坪のお家が出ました~(^^)v
最新記事
おすすめ記事
カテゴリ
- プレイワーク【収益物件】(4)
- プレイワーク【新築建売】(11)
- プレイワーク【宅地造成工事】(7)
- プレイワーク【リフォーム】(18)
- プレイワーク【堺市東区】新着物件(1)
- プレイワーク【建築写真】(34)
- プレイワーク【解体工事】(104)
- プレイワーク【堺市北区】新着物件(9)
- プレイワーク【岸和田市】新着物件(3)
- プレイワーク【和泉市】新着物件(16)
- プレイワーク【堺市西区】新着物件(9)
- プレイワーク【堺市堺区】新着物件(1)
- プレイワーク【高石市】新着物件(2)
- プレイワーク【堺市美原区】新着物件(1)
- プレイワーク【堺市中区】新着物件(4)
- プレイワーク【泉大津市】新着物件(8)
- プレイワーク【媒介契約実績】(22)
- 不動産購入コラム(10)
- オープンハウス開催(16)
- プレイワーク【売主物件】(65)
- プレイワーク【泉北郡忠岡町】新着物件(1)
- プレイワークからのお知らせ(14)
- プレイワーク【解体工事】鶴山台1丁目(9)
- プレイワーク【成約御礼】(79)
- プレイワーク【建築写真】ナンバー1(15)
- プレイワーク【建築写真】ナンバー2(13)
- 不動産売却コラム(62)




















