和泉市の不動産|プレイワーク株式会社 > プレイワーク株式会社のスタッフブログ記事一覧 > 【新築建売収益】和泉市池上町でガレージ/オフィス・2戸1新築建売が出ました~(^^)v

【新築建売収益】和泉市池上町でガレージ/オフィス・2戸1新築建売が出ました~(^^)v

≪ 前へ|【解体工事】堺市中区土塔町の解体工事が始まりました(^^)v   記事一覧   【売主物件】岸和田市箕土路町2丁目で、開発分譲地内・建築条件なしの土地が出ました~(^^♪|次へ ≫

【新築建売収益】和泉市池上町でガレージ/オフィス・2戸1新築建売が出ました~(^^)v

カテゴリ:プレイワーク【新築建売】
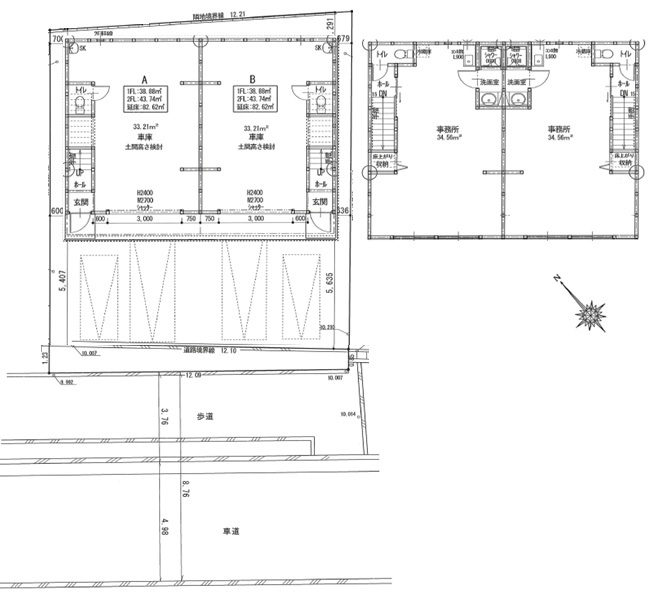
【プレイワーク池上町・ガレージ×オフィス・2戸1新築建売収益】

おはようございます(^^♪
本日は、プレイワーク株式会社の初めての試みである『新築建売2戸1・ガレージ×オフィス』販売開始のお知らせです(^^)v

こちらの物件を買取した考察と出口戦略についての記載したいと思います(^^)v

【買取考察】

本物件は、当初、新築用地として買取再販目的で購入いたしました、ちょうどその時期に初めての一棟収益を買取できたので、検討できる視座が高くなったことによって、本物件について再度検討しました(^^)/

第一に、駅が近いので、賃貸収益は良いんじゃないかと思いました(^^)/

第二に、国道26号線や100円高速が近く、側道による一方通行の為、車通りが少ないことなどを考えると、ガレージオフィスが良いのではないかという結論に達しました(^^)v

ガレージオフィスについては、市場ではガレージハウスとして、流行っているので、供給過多になっているのではないかと考えていましたが、借り手のことを考えると立地が良いところで借りたいと考えているのではないかと思いましたので、本物件について、車での交通便の良い条件が詰まっており、普遍的な立地条件だなと思ったので、需要があると考えました(^^)v

さらに掘り下げて考えると、新築の場合、完成するまで非常に時間がかかります、その際の時間は、企業にとっては、もったいない時間になるので、完成までの期間、販売に出してみようと思いました(^^)/

収益物件については、そもそも資産運用の為のものである為、利益確定をどのタイミングでするか、の話だと思いますので、建築途中で成約したら家賃収入が得られないので、本末転倒になり、もったいないような気がするというマインドになっていましたが、利益確定の時期が早かったな、と言うことに気づけば、そのマインドは錯覚だなと思いました(^^)v
やはり自問自答の時間は常に作っておかないと意思決定を間違えてしまうと再度、確認できました(#^^#)

出口戦略については、販売に出して売れない場合、金額を下げて、さらに利回りを良くして販売継続するか、金額を下げずに、当初の予定通り収益物件として保有するか、どちらかになります(^^♪
新築収益については、持って良し、売って良しだなと思いました、ただ、それやったら、新築収益ばかりすれば良いやんと思いますが、世の中そんなに甘くない為、しっかりハードルがあり、ハードルは、それに見合う物件を見つけることができるかどうか、それと資金(融資)の確保になります、そこが全てになるので、それを生業にすることは、難しいと考えています(#^^#)

完成までに成約すれば、成約考察を記載いたします、成約しなければ、弊社の収益物件として保有していきますので、進捗をご期待ください(^^)v

本物件は、現在販売中になります、下記写真をクリック頂けると物件詳細ページに行きますので、ご興味ある方は、お気軽にお問い合わせください(^^)v
※すでに成約済の場合はご容赦ください。

プレイワーク株式会社は『不動産買取再販』をしている会社です(^^)/
堺市堺区・北区・東区・西区・南区・和泉市・高石市・泉大津市・忠岡町・岸和田市を商圏エリアに不動産の買取を行っています、売却をご検討の方はお気軽にお問い合わせください(^^)v

プレイワーク株式会社
大阪府堺市堺区宿院町東4丁2番25号
PLAYWORK堺宿院ビル1F
フリーダイヤル:0120-132-008



≪ 前へ|【解体工事】堺市中区土塔町の解体工事が始まりました(^^)v   記事一覧   【売主物件】岸和田市箕土路町2丁目で、開発分譲地内・建築条件なしの土地が出ました~(^^♪|次へ ≫

最新記事

おすすめ記事

カテゴリ

>>全ての記事を見る

XMLRSS2.0

田中 宏昭 最新記事



田中 宏昭

PLAY WORKという社名には「遊ぶように楽しみながら働く」ことが、良い仕事に繋がるという考えを社名にしています、お客様のお役に立てるよう、社員一同、精一杯努力いたしますので、宜しくお願い致します。

スタッフ情報を見る

 おすすめ物件


トップへ戻る